Condo For Sale
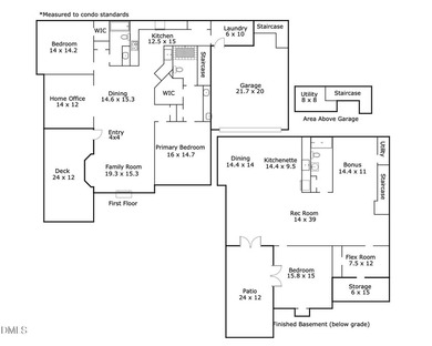
Tucked away at the end of a quiet cul-de-sac in the desirable Troon at Kildaire community, 2004 Clyde Bank Ct offers the perfect blend of comfort, convenience, and low-maintenance living in one of Cary's most established locations. Overlooking the neighborhood pond and walking trail, this beautifully maintained 3,399 square foot condo lives more like a spacious end-unit townhome--or even a single-family home--while offering the ease and simplicity of condo living. The main level welcomes you with beautifully refinished hardwood floors and new carpet, creating a warm and polished feel throughout the primary living spaces. The renovated kitchen features modern updates and thoughtful design, making it both functional for everyday living and inviting for entertaining. With three updated bathrooms and well-proportioned bedrooms, the home offers comfort and privacy for residents and guests alike. Downstairs, the expansive finished basement adds approximately 1,600 square feet of additional living space with durable LVP flooring--ideal for a media room, home office, guest suite, hobby space, or fitness area. You'll also find abundant storage, a rare and valuable feature, along with convenient access to the attached two-car garage. Positioned at the end of the street, the home enjoys peaceful views of the community pond and easy access to the neighborhood walking trail--perfect for morning strolls or evening unwinding outdoors. Life at Troon at Kildaire places you close to everything that makes Cary so desirable. Just minutes away, the popular shopping and dining area at Kildaire Farm Road and Cary Parkway--including Trader Joe's--makes everyday errands effortless. Parks, greenways, golf, and cultural amenities are all nearby, while the central location provides quick access to both downtown Cary and Raleigh. For those seeking the space and feel of a larger home without the upkeep, this property offers the ideal lifestyle: generous square footage, beautiful updates, scenic surroundings, and the convenience of low-maintenance condo living in a prime Cary location.Property Details
- Beds: 3
- Baths: 3.0
- Sq Feet: 3399
- Year Built: 2003
- Location: (private lake, pond, coastal)
- County: Wake County
- Community: Troon at Kildaire
- Heat/AC: Fireplace(s), Forced Air
- Siding: Brick, Concrete
- Roof: Shingle
- Stories: 1
- Fireplaces: Has Fireplace
- Property Taxes: $5,610
- MLS #: 10152764
Location
| Click on map to activate | |
|
|
| (Open in Google Maps) (Bing Map)  (Mapquest Map) |
Contact Information:
|
||
|
Listing Agent: Chip Barker, Real Broker LLC, 919-271-1074, 919-348-2585 Listing Site, Listing Status: Active
Copyright © 2026 Doorify MLS. All rights reserved. All information provided by the listing agent/broker is deemed reliable but is not guaranteed and should be independently verified.
|
||
Ad Statistics:
| Ad Number : | 7401491 |
| Viewed: | 0 times |
| Added: | Mar 13, 2026 |
| Updated on: | Mar 13, 2026 |
| All information provided is deemed reliable but is not guaranteed and should be independently verified. | |
